Prodej bytu Plzenecká ulice – Plzeň (56 m2)

Číslo zakázky: P001012026

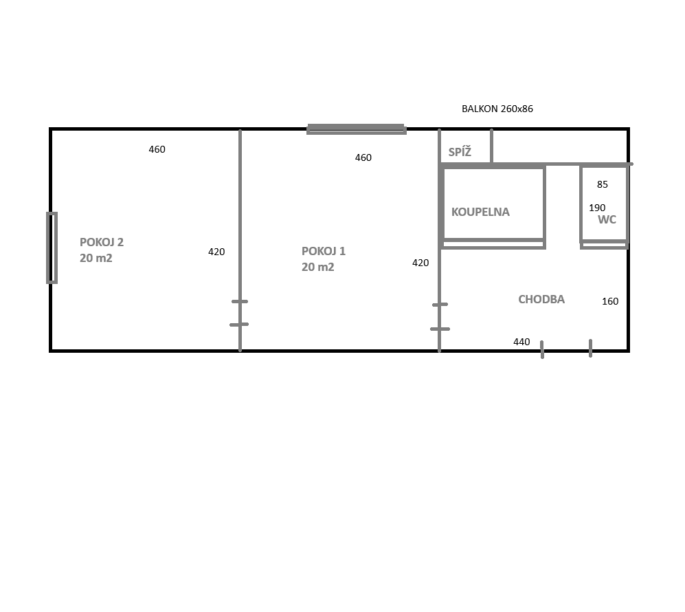
Byt 2+1 +B –56 m2 – 2. patro

Cena: 4.600.000 Kč

Režie + zálohy: 2.499 Kč

Třída energetické náročnosti: „G“

NOVINKA

Exkluzivně nabízíme na prodej, slunný, pěkný byt 2+1 + B o výměře 56 m2 v Plzni – Slovany, Plzenecká ulice. Je hezky dispozičně řešený. Je v soukromém vlastnictví a není nijak právně zatížený .

Je situovaný ve druhém patře cihlového bytového domu bez výtahu, který prošel v roce 2020 celkovou revitalizací, nová střecha, zateplení, výměna oken za plastová a další. Vytápěni zajišťuje plynové topení WAW. Podlahy tvoří beton a PVC. K bytu náleží sklep o výměře 5 m2. Za domem je dvorek. Celkové měsíční náklady na byt činí 2.499 Kč. Dům je situovaný v klidné lokalitě mimo hlavní komunikace, s veškerou občanskou vybaveností, v blízkosti ZŠ, MŠ, nákupní středisko, včetně různých služeb, také plavecký bazén, MHD. Parkování před domem. Velmi dobrá dopravní dostupnost. Tiché, klidné bydlení v pečlivě udržovaném domě. Volný ihned. Jednoznačně doporučujeme. Další informace a sjednání prohlídky na telefonu 604 725 735.